


+11รหัสทรัพย์ DACHMSH0117001
สอบถามข้อมูลเพิ่มเติม นัดดูทรัพย์ >> 🤗ทิ้งชื่อ เบอร์ติดต่อ ในแชท ให้เจ้าหน้าที่ขายติดต่อกลับได้เลยค่ะ🤗(บริษัทเปิดให้บริการติดต่อ วันจันทร์-ศุกร์ เวลา 9.00-17.00 ยกเว้นวันหยุดนักขัตฤกษ์)
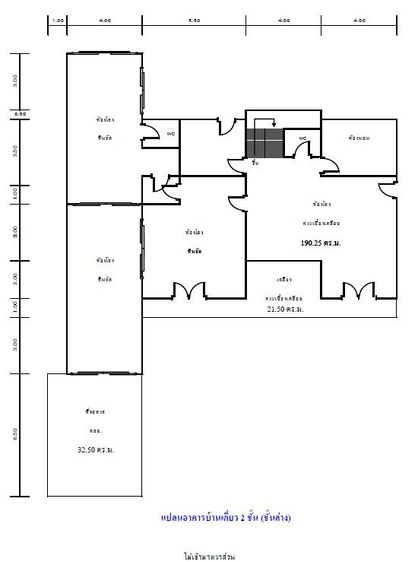
บ้านเดี่ยว 2 ชั้น ทรัพย์ประกอบด้วยสิ่งปลูกสร้างรวม 3 รายการ ตั้งอยู่บนที่ดินรวม 4 แปลง ติดต่อเป็นผืนเดียวกัน ประกอบด้วย 1) บ้านเดี่ยว 2 ชั้น พื้นที่ใช้สอย 380.75 ตร.ม. 2) อาคารตึกชั้นเดียว พื้นที่ใช้สอย 34.50 ตร.ม. 3) อาคารตึกชั้นเดียว พื้นที่ใช้สอย 67.20 ตร.ม. ไม่ระบุเลขที่ ตั้งอยู่ในโครงการหมู่บ้านกาญจน์กนก 1 ถนนสันกำแพงสายใหม่ (ทางหลวง 1317)
บริษัทขอสงวนสิทธิ์ในการเปลี่ยนแปลงรายละเอียดทรัพย์สิน ราคาตั้งขาย รวมถึงเงื่อนไขอื่นใด หรือยกเลิกการ ขายทรัพย์สินได้โดยไม่ต้องแจ้งให้ผู้สนใจเสนอซื้อทราบล่วงหน้า ภาพและรายละเอียดอาจมีการเปลี่ยนแปลงตามสภาพทรัพย์ในปัจจุบัน
https://www.google.com/maps/search/?api=1&query=18.73803309,99.07678933