


+9รหัสทรัพย์ : DEBKKSH0261001
สอบถามข้อมูลเพิ่มเติม นัดดูทรัพย์ >> 😊ทิ้งชื่อ เบอร์ติดต่อ ในแชท ให้เจ้าหน้าที่ขายติดต่อกลับได้เลยค่ะ😊 (บริษัทเปิดให้บริการติดต่อ วันจันทร์-ศุกร์ เวลา 9.00-17.00 ยกเว้นวันหยุดนักขัตฤกษ์)
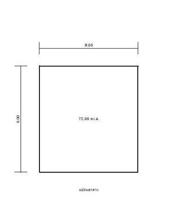
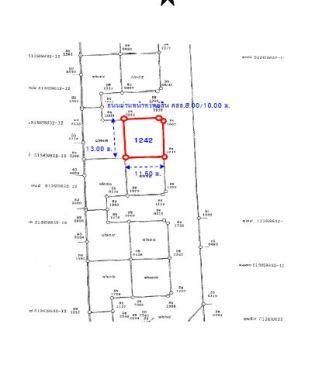
บ้านชั้นเดียว หมู่บ้านเพ็ญศิริ บ้านชั้นเดียว จำนวน 1 หลัง สภาพปานกลาง ขนาดที่ดิน 11.5x13 เมตร ขนาดอาคาร 8x9 เมตร พื้นที่ใช้สอย 72 ตารางเมตร บ้านเลขที่ 51/38 หมู่บ้านเพ็ญศิริ 3 ซอยมิตรไมตรี 6/5 ถนนมิตรไมตรี แขวงหนองจอก เขตหนองจอก กรุงเทพมหานคร ห่างจากถนนมิตรไมตรีประมาณ 270 เมตร
บริษัทขอสงวนสิทธิ์ในการเปลี่ยนแปลงรายละเอียดทรัพย์สิน ราคาตั้งขาย รวมถึงเงื่อนไขอื่นใด หรือยกเลิกการ ขายทรัพย์สินได้โดยไม่ต้องแจ้งให้ผู้สนใจเสนอซื้อทราบล่วงหน้า
https://www.google.com/maps/search/?api=1&query=13.86139282,100.84718325