


+10āļĢāļŦāļąāļŠāļāļĢāļąāļāļĒāđ DALPOVL0145001
āļŠāļāļāļāļēāļĄāļāđāļāļĄāļđāļĨāđāļāļīāđāļĄāđāļāļīāļĄ āļāļąāļāļāļđāļāļĢāļąāļāļĒāđ >> ðĪāļāļīāđāļāļāļ·āđāļ āđāļāļāļĢāđāļāļīāļāļāđāļ āđāļāđāļāļ āđāļŦāđāđāļāđāļēāļŦāļāđāļēāļāļĩāđāļāļēāļĒāļāļīāļāļāđāļāļāļĨāļąāļāđāļāđāđāļĨāļĒāļāđāļ°ðĪ(āļāļĢāļīāļĐāļąāļāđāļāļīāļāđāļŦāđāļāļĢāļīāļāļēāļĢāļāļīāļāļāđāļ āļ§āļąāļāļāļąāļāļāļĢāđ-āļĻāļļāļāļĢāđ āđāļ§āļĨāļē 9.00-17.00 āļĒāļāđāļ§āđāļāļ§āļąāļāļŦāļĒāļļāļāļāļąāļāļāļąāļāļĪāļāļĐāđ)
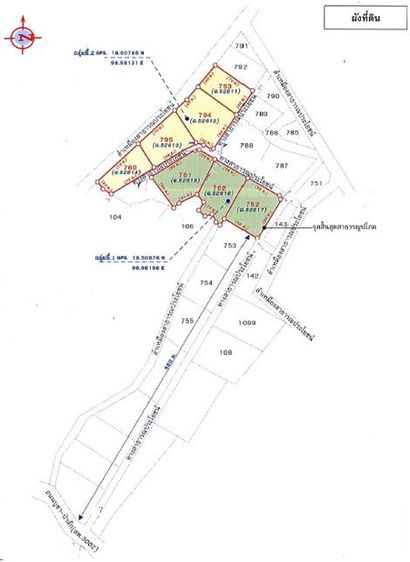
āļāļĩāđāļāļīāļāđāļāļĨāđāļē āđāļāļ·āđāļāļāļĩāđ 1-2-63.60 āđāļĢāđ āđāļāļĢāļāļāļēāļĢāļŠāļ§āļāļāļ§āļąāļāļāļēāļĄāđāļāļ§āļĩ āļāļĒāļđāđāļŦāđāļēāļāļāļēāļāļāļāļāļŠāļēāļĒāļĨāļģāļāļđāļ-āļāđāļēāļāļēāļ(āļāļĨ.116) āļāļĢāļ°āļĄāļēāļ 1.5 āļāļĄ.
āļāļĢāļīāļĐāļąāļāļāļāļŠāļāļ§āļāļŠāļīāļāļāļīāđāđāļāļāļēāļĢāđāļāļĨāļĩāđāļĒāļāđāļāļĨāļāļĢāļēāļĒāļĨāļ°āđāļāļĩāļĒāļāļāļĢāļąāļāļĒāđāļŠāļīāļ āļĢāļēāļāļēāļāļąāđāļāļāļēāļĒ āļĢāļ§āļĄāļāļķāļāđāļāļ·āđāļāļāđāļāļāļ·āđāļāđāļ āļŦāļĢāļ·āļāļĒāļāđāļĨāļīāļāļāļēāļĢ āļāļēāļĒāļāļĢāļąāļāļĒāđāļŠāļīāļāđāļāđāđāļāļĒāđāļĄāđāļāđāļāļāđāļāđāļāđāļŦāđāļāļđāđāļŠāļāđāļāđāļŠāļāļāļāļ·āđāļāļāļĢāļēāļāļĨāđāļ§āļāļŦāļāđāļē āļ āļēāļāđāļĨāļ°āļĢāļēāļĒāļĨāļ°āđāļāļĩāļĒāļāļāļēāļāļĄāļĩāļāļēāļĢāđāļāļĨāļĩāđāļĒāļāđāļāļĨāļāļāļēāļĄāļŠāļ āļēāļāļāļĢāļąāļāļĒāđāđāļāļāļąāļāļāļļāļāļąāļ
https://www.google.com/maps/search/?api=1&query=18.50718333,98.98029475