


+15āļĢāļŦāļąāļŠāļāļĢāļąāļāļĒāđ ïž DKPYOSH0101001
āļŠāļāļāļāļēāļĄāļāđāļāļĄāļđāļĨāđāļāļīāđāļĄāđāļāļīāļĄ āļāļąāļāļāļđāļāļĢāļąāļāļĒāđ >> ðāļāļīāđāļāļāļ·āđāļ āđāļāļāļĢāđāļāļīāļāļāđāļ āđāļāđāļāļ āđāļŦāđāđāļāđāļēāļŦāļāđāļēāļāļĩāđāļāļēāļĒāļāļīāļāļāđāļāļāļĨāļąāļāđāļāđāđāļĨāļĒāļāđāļ°ð (āļāļĢāļīāļĐāļąāļāđāļāļīāļāđāļŦāđāļāļĢāļīāļāļēāļĢāļāļīāļāļāđāļ āļ§āļąāļāļāļąāļāļāļĢāđ-āļĻāļļāļāļĢāđ āđāļ§āļĨāļē 9.00-17.00 āļĒāļāđāļ§āđāļāļ§āļąāļāļŦāļĒāļļāļāļāļąāļāļāļąāļāļĪāļāļĐāđ)
āđāļĄāđāļĄāļĩāļāļ·āđāļāđāļāļĢāļāļāļēāļĢ āļāļĢāļąāļāļĒāđāļāļąāđāļāļāļĒāļđāđāļāļīāļāļāļāļĒāđāļĄāđāļĄāļĩāļāļ·āđāļ āđāļĒāļāļāļēāļāļāļāļĒ 6 āļĄ.11 āļŦāđāļēāļāļāļēāļāļāļāļāļŠāļēāļĒāđāļāļĩāļĒāļāļāļģ-āđāļāļīāļ (āļāļĨ.1021) āļāļĢāļ°āļĄāļēāļ 135 āđāļĄāļāļĢ āļāļēāļĢāļāļĄāļāļēāļāļĄāļŠāļ°āļāļ§āļ āļŠāļēāļāļēāļĢāļāļđāļāđāļ āļāđāļāļāđāļē āļāđāļģāļāļĢāļ°āļāļē āđāļāļĢāļĻāļąāļāļāđ āļŠāļ āļēāļāđāļ§āļāļĨāđāļāļĄāđāļāļĒāļāļąāđāļ§āđāļāđāļāđāļāļĒāđāļēāļāļāļąāļāļāļēāļĻāļąāļĒ āļŠāļāļēāļāļāļĩāđāđāļāļĨāđāđāļāļĩāļĒāļ āđāļĢāļāđāļĢāļĩāļĒāļāļāļāļļāļāļēāļĨāļ āļđāļāļēāļ āļ§āļąāļāļāļāļāļāļąāļ āđāļĨāļ° āļāļĨāļēāļāļŠāļāļāļāļŦāđāļēāļāļāļēāļāļāļĨāļēāļāļŠāļāļāļāļĢāļ°āļĒāļ°āļāļĢāļ°āļĄāļēāļ 900 āđāļĄāļāļĢ
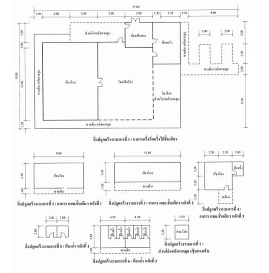
-āļŠāļīāđāļāļāļĨāļđāļāļŠāļĢāđāļēāļāļĢāļ§āļĄ 7 āļĢāļēāļĒāļāļēāļĢ
1.āļāļēāļāļēāļĢāļāļĢāļķāđāļāļāļķāļāļāļĢāļķāđāļāđāļĄāđāļāļķāļāļāļąāđāļāđāļāļĩāļĒāļ§ āļāļāļēāļ 19*37 āđāļĄāļāļĢ āļ.537 āļāļĢāļĄ.
2.āļāļēāļāļēāļĢ āļāļŠāļĨ.āļāļąāđāļāđāļāļĩāļĒāļ§ āļŦāļĨāļąāļāļāļĩāđ 1 āļāļāļēāļ 5.50*9 āđāļĄāļāļĢ āļāļ.50 āļāļĢāļĄ.
3.āļāļēāļāļēāļĢ āļāļŠāļĨ.āļāļąāđāļāđāļāļĩāļĒāļ§ āļŦāļĨāļąāļāļāļĩāđ 2 āļāļāļēāļ 5*12 āđāļĄāļāļĢ āļāļ.36 āļāļĢāļĄ.
4.āļāļēāļāļēāļĢ āļāļŠāļĨ.āļāļąāđāļāđāļāļĩāļĒāļ§ āļŦāļĨāļąāļāļāļĩāđ 3 āļāļāļēāļ 7*7.50 āđāļĄāļāļĢ āļāļ.36 āļāļĢāļĄ.
5.āļŦāđāļāļāļāđāļģ āļŦāļĨāļąāļāļāļĩāđ 1 āļāļāļēāļ 2*4 āđāļĄāļāļĢ āļāļ.8 āļāļĢāļĄ.
6.āļŦāđāļāļāļāđāļģ āļŦāļĨāļąāļāļāļĩāđ 2 āļāļāļēāļ 5*9 āđāļĄāļāļĢ āļāļ.45 āļāļĢāļĄ.
7.āļŠāđāļ§āļāđāļĨāđāļāļŦāļĨāļąāļāļāļēāļāļĨāļļāļĄ āļāļāļēāļāļāļ§āđāļēāļ 2.50*2.50 āđāļĄāļāļĢ āļŠāļīāđāļāļāļĨāļđāļāļŠāļĢāđāļēāļāļĢāļ§āļĄ 7 āļĢāļēāļĒāļāļēāļĢ
1.āļāļēāļāļēāļĢāļāļĢāļķāđāļāļāļķāļāļāļĢāļķāđāļāđāļĄāđāļāļķāļāļāļąāđāļāđāļāļĩāļĒāļ§ āļāļāļēāļ 19*37 āđāļĄāļāļĢ āļ.537 āļāļĢāļĄ.
2.āļāļēāļāļēāļĢ āļāļŠāļĨ.āļāļąāđāļāđāļāļĩāļĒāļ§ āļŦāļĨāļąāļāļāļĩāđ 1 āļāļāļēāļ 5.50*9 āđāļĄāļāļĢ āļāļ.50 āļāļĢāļĄ.
3.āļāļēāļāļēāļĢ āļāļŠāļĨ.āļāļąāđāļāđāļāļĩāļĒāļ§ āļŦāļĨāļąāļāļāļĩāđ 2 āļāļāļēāļ 5*12 āđāļĄāļāļĢ āļāļ.36 āļāļĢāļĄ.
4.āļāļēāļāļēāļĢ āļāļŠāļĨ.āļāļąāđāļāđāļāļĩāļĒāļ§ āļŦāļĨāļąāļāļāļĩāđ 3 āļāļāļēāļ 7*7.50 āđāļĄāļāļĢ āļāļ.36 āļāļĢāļĄ.
5.āļŦāđāļāļāļāđāļģ āļŦāļĨāļąāļāļāļĩāđ 1 āļāļāļēāļ 2*4 āđāļĄāļāļĢ āļāļ.8 āļāļĢāļĄ.
6.āļŦāđāļāļāļāđāļģ āļŦāļĨāļąāļāļāļĩāđ 2 āļāļāļēāļ 5*9 āđāļĄāļāļĢ āļāļ.45 āļāļĢāļĄ.
7.āļŠāđāļ§āļāđāļĨāđāļāļŦāļĨāļąāļāļāļēāļāļĨāļļāļĄ āļāļāļēāļāļāļ§āđāļēāļ 2.50*2.50 āđāļĄāļāļĢ
āļāļĢāļīāļĐāļąāļāļāļāļŠāļāļ§āļāļŠāļīāļāļāļīāđāđāļāļāļēāļĢāđāļāļĨāļĩāđāļĒāļāđāļāļĨāļāļĢāļēāļĒāļĨāļ°āđāļāļĩāļĒāļāļāļĢāļąāļāļĒāđāļŠāļīāļ āļĢāļēāļāļēāļāļąāđāļāļāļēāļĒ āļĢāļ§āļĄāļāļķāļāđāļāļ·āđāļāļāđāļāļāļ·āđāļāđāļ āļŦāļĢāļ·āļāļĒāļāđāļĨāļīāļāļāļēāļĢ āļāļēāļĒāļāļĢāļąāļāļĒāđāļŠāļīāļāđāļāđāđāļāļĒāđāļĄāđāļāđāļāļāđāļāđāļāđāļŦāđāļāļđāđāļŠāļāđāļāđāļŠāļāļāļāļ·āđāļāļāļĢāļēāļāļĨāđāļ§āļāļŦāļāđāļē
https://www.google.com/maps/search/?api=1&query=19.564409,100.2999204